Концепция
Является поиском композиционных архитектурных решений, пространства, света и формы, конструкций и материалов, фактуры и цвета. Материалы предоставляются в смешанной технике (фотографии, карандашные наброски, 3D-визуализации)
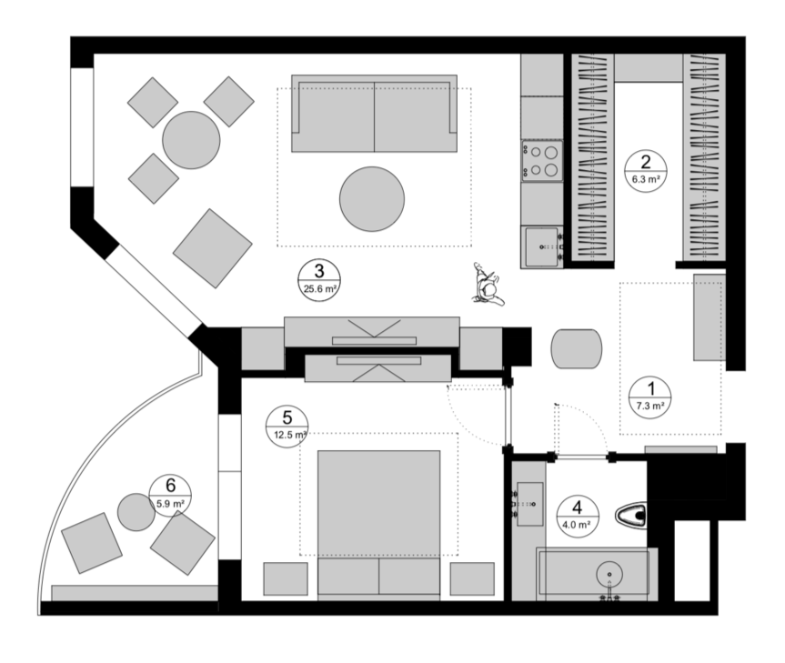
На основе выбранной концепции здания и сформированного технического задания производится разработка планировочных решений, определяются формы, конструкции, материалы, фактуры и цветовая гамма будущего сооружения. На этом этапе производится проработка планов, фасадов, разрезов в полном объеме.
Эскизный проект
Разработка проектной документации в соответствии с нормами, правилами и соблюдением всех стандартов (СНИП и ГОСТ): архитектурно-строительные чертежи (архитектурный и конструктивные разделы), инженерные чертежи (системы водоснабжения, канализации, электрооборудования, отопления и вентиляции).
Рабочий проект
Мы предлагаем разовые консультации по возможности реализации перепланировки, возможной комплектации и стилизации объекта. Обычно такой услугой пользуются клиенты, которым необходима помощь в выборе между несколькими объектами для покупки или аренды или те, у кого объект уже готов, но необходимо укомплектовать его мебелью и декором.
Консультация
Включает в себя обмерный план, планировочное решение с расстановкой мебели и moodboard со стилистическими и цветовыми решениями, примерной подборкой отделочных материалов и мебели.

Эскизный проект
Скачать пример
Наша команда разрабатывает чертежи нестандартной мебели: кухонь, гардеробных, встроенной мебели с возможным подбором подрядчиков и контролем производства.
Разработка чертежей мебели
Скачать пример
Дизайн-проект
Более полный проект, который включает в себя:
3D визуализацию помещения
Все необходимые Схемы и планы
Всю проектную документацию
Скачать пример
В ходе авторского надзора наши специалисты подбирают необходимых подрядчиков, консультируют строителей в ходе ремонта, контролируют качество работ и соответствие дизайн-проекту. Вместе с заказчиком мы выбираем и закупаем необходимые материалы, мебель и оборудование.
Авторский надзор